Select market / language




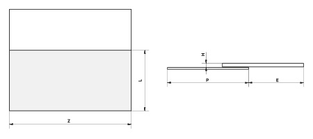
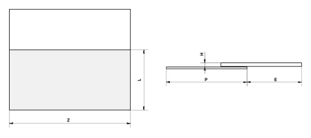
Grazie a questo sistema esclusivo di guide in alluminio, è possibile celare il piano di lavoro (eventualmente composto anche da fuochi, lavello, ecc.) conferendo alla cucina un design pulito e moderno.